Выполняю любые работы с электричеством: от диагностики до устранения неисправностей.
Планируете строительство или ремонт? Мы быстро и качественно выполним электромонтаж "под ключ":
Поиск и устранение неисправностей в электропроводке
Полная или частичная замена электропроводки
Штробление стен
Замена или установка автоматов
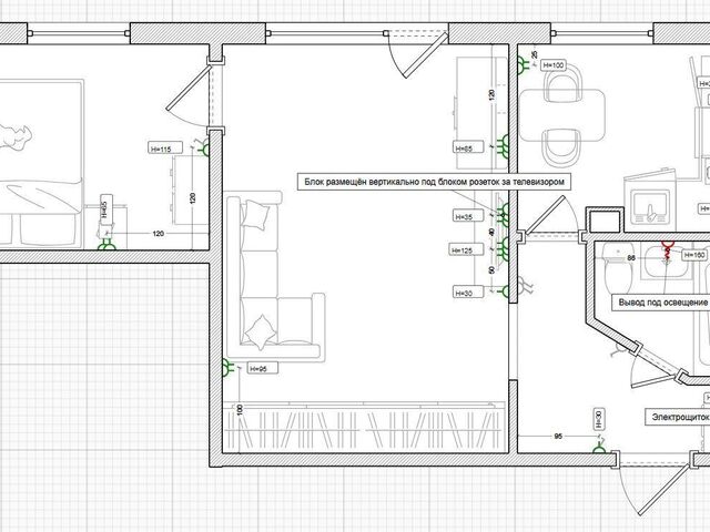
Прокладка кабеля
Замена и установка розеток, выключателей, дверных звонков
Замена и установка освещения в комнатах
Установка и замена счетчиков
Монтаж и подключение теплых полов
Сборка и переборка щитов
Подключение электроплит, вытяжек, кондиционеров, духовых шкафов (возможна протяжка кабеля от щита с установкой дополнительного автомата)
Установка соединительных муфт
Имею большой стаж работы и предлагаю широкий спектр услуг.
